Food Trucks, Concession Trailers, Mobile Businesses, Vending Machines & more...

Sell Your Equipment
Sell Used Vending Machines - Vending Classifieds Sell Used Vending Machines - Vending Classifieds
Call Now or Inquire Online
Login to Inquire Online
Call: (601) 749-8424
Build a Custom Food Truck Quote

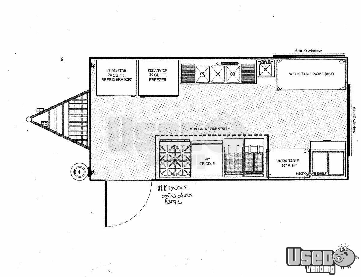
2016 8.5' x 18' Quality Kitchen Food Concession Trailer with Fire Suppression System for Sale in Florida!

2016 Custom Built Kitchen Food Trailer Florida for Sale
Sold
$19,600USD Item No: FL-P-794X3 Location: Florida - Pickup or have it transported!
Big dreams? Get the food truck financing you need - apply now!
This food trailer offers a spacious build with durable construction and a clean interior setup. Used only a handful of times each year, it’s well-maintained and fully equipped to handle a wide variety of menus, making it a strong choice for both newcomers and seasoned operators. Make it yours by calling us now!

Standout features include:

- Dual concession windows with counters
- Commercial-grade diamond plated flooring with drains
- 20CF stainless steel refrigerator & freezer
- 4-burner stovetop with oven
- 24" flat grill and twin 40lb fryers
- Steam table, microwave, and work tables
- 8' hood with pro fire suppression system
- Triple sink, handwashing sink, and grease trap
- 43-gallon fresh/50-gallon gray water tanks
- 125AMP breaker box with multiple outlets

This trailer is in good condition, though the exterior requires a custom wrap for branding. With recently serviced fire suppression, reliable plumbing, and strong electrical systems, it’s ready to operate immediately.

Seller's Note: No A/C and heat; we used a portable A/C unit that one of our members let us use that worked really well. We also found in most cases, there would be enough cross breeze with both the windows and sometimes the door open to give that added comfort when not using the portable A/C unit. There is also a vent in the ceiling that can be opened too. In January, the heat from the grill and the fryers kept us warm enough when working in there, and we only used the large side window for service and kept the rear window and door closed.
Too late - This item is Sold or no longer available, but You can see more kitchen food trailers like this here!

Specifications

  • Trailer Specifications

  • VEHICLE Year of Manufacture: 2016
  • Box Length: 18'
  • Width: 8.5'
  • Height: 7'
  • Kitchen Equipment Runs On: GAS & ELECTRICITY

Equipment List

  • Vehicle Features

  • Concession Window(s): 2 - 64" x 40" with Sliding Glass Windows & Screens
  • Stainless Steel Wall Covers
  • Floor Drains
  • Exterior Customer Counter: 2 - fold down
  • Equipment Power Supply

  • Shore Power Cord: 1
  • Refrigeration

  • Upright Freezer: Kelvinator 20CF, Upright, Stainless Steel Energy Saver, 6AMP, 32
  • Refrigerator: Kelvinator 20CF, Upright, Stainless Steel Energy Saver
  • Cooking Equipment

  • Stovetop: 4 burners
  • Oven
  • Flatgrill: 24" Radiance 44,000 BTU gas
  • Fryer(s): 2 - 40 lb Frymaster w/2 baskets
  • Microwave: (new in box)
  • Steam Table
  • Kitchen Equipment

  • Exhaust Hood: 7'
  • Exhaust Fan: VXD33+1400CFM
  • Fire Extinguisher: K Class and ABC
  • Pro Fire Suppression System: Chemical
  • Work Table
  • Electrical

  • Exterior Lighting
  • Interior Lighting
  • Electrical Outlets
  • Breaker Panel
  • Plumbing

  • Hot Water Heater: 4 gpm on demand
  • Hand-washing Sink
  • Triple Sink
  • Fresh Water Tank: 43 gal
  • Gray Water Tank: 50 gal
  • Plumbing Grease Trap
  • Additional Equipment

  • Leveling jacks
  • Shurflo Industrial Water Pump 198GPH 115V
  • Propane lines & connectors
  • Anti slip rubber floors
Interested to know how buying on UsedVending works? Visit our FAQ page.

Prior Equipment Questions...
Does it have AC and heat?
It does not. However, we used a portable A/C unit that one of our members let us use that worked really well. We also found in most cases, there would be enough cross breeze with both the windows and sometimes the door open to give that added comfort when not using the portable A/C unit. There is also a vent in the ceiling that can be opened too. In January, the heat from the grill and the fryers kept us warm enough when working in there, and we only used the large side window for service and kept the rear window and door closed.
Know When Prices Drop
Send Me Price Drops
Shop Kitchen Food Trailers for sale near Tampa, Florida
MeFirst Alerts
We have thousands of equipment listings!
Search below by category, zip code, distance, or keywords...
DISPLAY OPTIONS
Your Zip Code:
Will display approx miles away for each ad.
Sort By:
Filter by Price